









.png)
.png)
_4.png)





Démagnétisation
Inclus avec l'achat:
- Interrupteur ON/OFF, fusibles et LED de contrôle
- Câble de 3 mètres
Tension: 230 / 400 VAC
Cycle de service: 100%

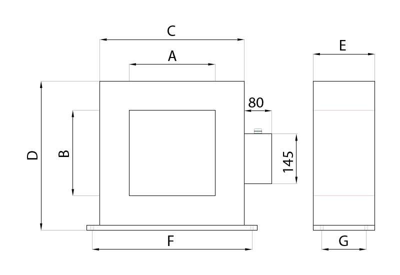
| LIBELLÉ | Poids Kg | A | B | C | D | E | F | G | H |
|---|---|---|---|---|---|---|---|---|---|
| 16.04.150100 | 40,0 | 150 | 100 | 320 | 282 | 150 | 358 | 110 | 230 V AC |
| 16.04.200600 | 150,0 | 200 | 600 | 370 | 790 | 250 | 450 | 150 | 230 V AC |
| 16.04.260130 | 48,0 | 260 | 130 | 430 | 315 | 165 | 475 | 115 | 230 V AC |
| 16.04.250250 | 66,0 | 250 | 250 | 420 | 435 | 180 | 470 | 130 | 230 V AC |
| 16.04.400200 | 120,0 | 400 | 200 | 570 | 385 | 230 | 595 | 150 | 230 V AC |
| 16.04.400350 | 142,0 | 400 | 350 | 570 | 535 | 230 | 595 | 150 | 230 V AC |
| 16.04.400400 | 110 | 400 | 400 | 570 | 570 | 350 | 430 | 270 | 400 V AC |
| 16.04.550550 | 125 | 550 | 550 | 720 | 720 | 350 | 580 | 270 | 400 V AC |
| 16.04.750550 | 150 | 750 | 550 | 920 | 720 | 350 | 750 | 270 | 400 V AC |
| 16.04.850420 | 500 | 850 | 420 | 1090 | 660 | 340 | 1100 | 380 | 400 V AC |
Pour toute demande ou information, veuillez remplir ce formulaire et nous reviendrons vers vous dès que possible.
Les champs marqués d'un astérisque (*) sont obligatoires.